Apartamento T2 à venda em Lisboa
Arroios




+26399 000 €Venda
id. 120521306-36
75 m²
2 Quartos
Descrição
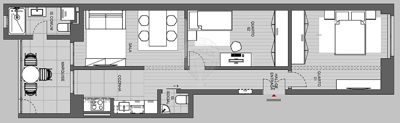
APARTAMENTO T2 COM 2 CASAS DE BANHO E QUINTAL - EM ARROIOS. " Uma casa cheia de luz e pé direito alto." - Descubra este encantador apartamento, situado numa cave luminosa nível primeiro piso devido a inclinação do terreno no carismático Bairro das Colónias , num edifício de traça antiga e bem conservado, onde o charme da arquitetura tradicional se alia ao conforto moderno. O apartamento recebeu obras e está pronto para habitar. - Com uma excelente exposição solar nascente/poente, este apartamento é composto por um corredor, uma sala acolhedora com janela para a rua, dois quartos um deles com acesso à marquise, ideal para um espaço de descanso ou leitura oferecendo um ambiente funcional e moderno, com ligação a uma agradável sala de refeições na marquise. E para total comodidade a cozinha está equipada e o apartamento conta com 2 CASAS DE BANHO. - Uma das grandes mais-valias deste imóvel é o quintal privativo, perfeito para momentos de lazer ao ar livre. O apartamento destaca-se ainda pelo seu pé-direito alto, que proporciona uma maior sensação de amplitude e boa ventilação. - A localização é simplesmente imbatível. A poucos minutos do metro dos Anjos e de várias paragens de autocarro, o apartamento está também a uma curta distância da Avenida Almirante Reis, oferecendo acesso fácil a comércio local, serviços e transportes. Além disso, conta com estacionamento exclusivo para residentes com dístico EMEL, tornando-o ainda mais prático para quem vive na cidade. - Este é o espaço ideal para quem procura um refúgio tranquilo no coração de Lisboa, sem abdicar de conveniências urbanas. OBS: Algumas imagens fornecidas do imóvel estão em home staging virtual. "Vem viver o melhor de viver em Arroios." - Agende o seu horário para visitar com antecedência.
Contacte-me.
LOCALIZAÇÃO da casa : Rua: Ilha de São Tomé n.09 - Arroios ----------------------------------------------------------------------------------------- 2-BEDROOM APARTMENT WITH 2 BATHROOMS AND BACKYARD - IN ARROIOS. “A house full of light and high ceilings.” - Discover this charming apartment, located on a bright first floor due to the slope of the land in the charismatic Bairro das Colónias neighborhood, in an old and well-maintained building, where the charm of traditional architecture combines with modern comfort. The apartment has been renovated and is ready to move into. - With excellent east/west sun exposure, this apartment comprises a hallway, a cozy living room with a window overlooking the street, two bedrooms, one of which has access to the sunroom, ideal for a relaxation or reading area, offering a functional and modern environment, connected to a pleasant dining room in the sunroom. And for total convenience, the kitchen is equipped and the apartment has 2 BATHROOMS. - One of the great advantages of this property is the private backyard, perfect for outdoor leisure moments. The apartment also stands out for its high ceilings, which provide a greater sense of spaciousness and good ventilation. - The location is simply unbeatable. Just a few minutes from the Anjos metro station and several bus stops, the apartment is also a short distance from Avenida Almirante Reis, offering easy access to local shops, services, and transportation. In addition, it has exclusive parking for residents with an EMEL permit, making it even more practical for those who live in the city. - This is the ideal space for those looking for a quiet retreat in the heart of Lisbon, without giving up urban conveniences. NOTE: Some images provided of the property are virtual home staging. “Come and experience the best of living in Arroios.” - Schedule your viewing in advance.
Contact me.
LOCATION of the house: Street: Ilha de São Tomé n.09 - Arroios
Detalhes
Área Bruta m²
75Área Total do Lote m²
124Área Útil m²
60Quartos
2Ano de Construção
1989Elevador
NãoEstacionamento
NãoCarregamento de Carros Elétricos
NãoMapa
Divisões
Cozinha
Quarto
Quarto
Sala de Estar
Contactar agente
Simulador de Crédito
Valor do imóvel399 000 €
Valor de Entrada
39 900 €10%
Prazo de Amortização:30 anos
Prestação Mensal (*)1612,52 €
(*) A prestação mensal indicada corresponde a um valor de referência, tendo por base uma taxa variável (Euribor a 6 meses), não dispensando uma análise financeira mais completa e detalhada!
A informação resultante destas simulações é meramente indicativa, tendo como finalidade orientar sobre o custo estimado, segundo os dados indicados pelo utilizador. Cada entidade financeira tem as suas próprias políticas e condições de financiamento, não ficando vinculadas aos resultados desta simulação.
